Residential
Commercial
< Back to list

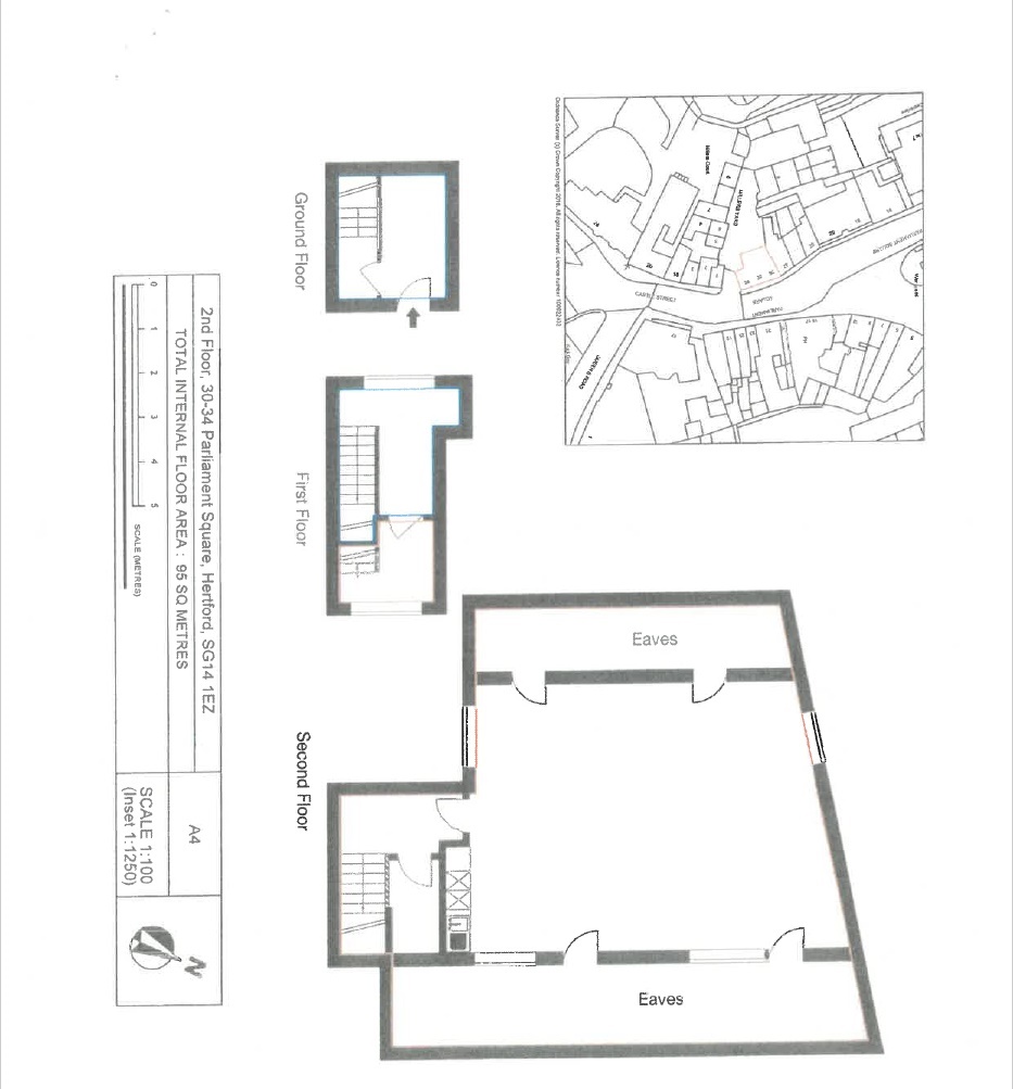
Parliament Square, Hertford, SG14 1EZ

£666.66 pcm
To Let
Letting details
Let type:
Commercial
Property Type
Commercial
Size
500 Sq Ft
Description

Second floor office premises situated in this prominent position in Hertford town centre. Conveniently located for bus links into Hertfordshire and rail links into central London. Total available space approx. 500ft2.

 

Hertford is situated approximately two miles west of the A10 and twelve miles north of Junction 25 on the M25. The town provides good links to the A10, M25, A505 and the M11. The property is located towards the town centre on the B158 which is walking distance from St Andrews car park and the main retail area of Hertford. Hertford North and East British Rail stations are close by with regular services to London’s Moorgate, Kings Cross and Liverpool Street.
The property is accessed directly from the pavement into the communal ground floor entrance foyer with a staircase leading to the first and second floors. The open plan office is located on the second floor and is carpeted throughout. Plenty of power sockets and telephone points. There is ample lighting. All windows to front and rear include secondary glazing. There is a communal gas-fired boiler and there are radiators throughout the offices.
The office has its own kitchen facilities and WC’s.

Accommodation
(all sizes approximate)

Secure Second Floor Offices

Net Internal Area (Excluding w/c & stairs)
505.9ft2 (47m2)

WC
Single WC

 

Terms
A new internal repairing and insuring Lease is offered, subject to contract, on flexible terms at a starting rental of £8,000 per annum exclusive. The incoming tenant is to be responsible for the landlord’s legal costs with regard to the granting of the new Lease.

Service Charge
Approximately £700 per annum.

Deposit
A deposit of three to six months rent will be required to be held for the duration of the lease by the landlords managing agent subject to the receipt of satisfactory references.

References
All incoming tenants will be required to provide satisfactory references from their bank, accountant, solicitor and current/previous commercial landlord. Photographic identification is also required.

Planning
The property falls within East Herts Borough Council and can be used as an office under Class E. All tenants are to satisfy themselves with regard to the Use Class Order.

Business Rates
Rateable Values; 2nd floor £4,550. Applicant to confirm rates payable with East Herts Council.

EPC
Rating D—96

 

Viewings by appointment only.

MAP

Thinking of selling or letting, or looking for a new home?

FIND YOUR PROPERTY

About Us

WDB have been independent property consultants since 1962. We act for over one hundred clients and manage over a thousand properties varying from owners of single properties to multi million pound portfolios.

Read More >

Get in touch

mail@wdbproperty.co.uk
020 8886 4407
22 Cannon Hill, Southgate
London N14 6BY

Business hours

Monday – Friday: 9:30am – 5:30pm
Saturday: Mornings by appointment only
Sunday: Closed