Residential
Commercial
< Back to list

105 St Marks Road, Enfield

OIRO: £400,000
Sold STC
Property Type
Commercial
Description

The property is located on St Marks Road, a busy secondary parade within walking distance (3 mins) of Bush Hill Park Station (regular services to London’s Liverpool Street via Seven Sisters). The property is also close to a bus stop for routes to Enfield or Tottenham Hale. Road links connect Bush Hill Park to the A10 (Great Cambridge Road).

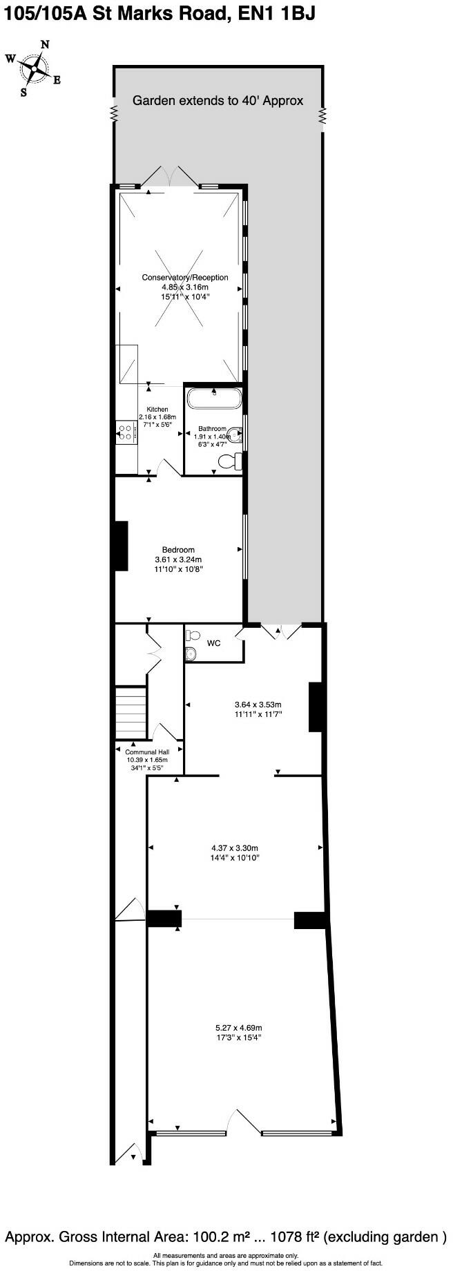
This vacant lock up shop consists of a main trading area together with a small kitchen/preparation area to the rear. A w/c is located off the kitchen with a shuttered door to garden. Laminate flooring has been laid throughout the main retail area with tiles to the kitchen area and toilet. There is no gas to the retails premises. Roller shutters secure premises with electric at the front and manual at the rear.

Adjacent to the shop is the entrance to the flats. An entrance corridor leads to the fronts doors of 105a and 105b. 105a has been sold on a long lease. 105b comprises a bedroom, bathroom and open plan living room/kitchen. Hardwood flooring is laid throughout the flat with the exception of the fully tiled bathroom. The kitchen has built in oven and hob together with a gas fired combination boiler which provides both the heating and hot water. French doors lead out to the large garden which extends to nearly 12 metres. There is potential to extend/reconfigure the flat, STPP.

There is on road parking available on St Marks Road which is permit holders only between 13.00 & 14.00 Monday to Friday on one side and between 15.00 & 16.00 on the other.

Accommodation
(all sizes approximate)

105 (Retail Premises)

Retail Area
4.67m (15.32ft) x 9.1m (29.85ft)
Kitchenette
3.52m (11.54ft) x 3.48m (11.42ft)
W/C
Toilet and wash hand basin

Net Internal Area
49.55m2 (533.35ft2)

105a (1st and 2nd floor)
Not inspected.

105b (Ground floor flat)
Entrance Hall
2.82 (ft) x 0.83m (ft)
Wardrobe/understairs cupboard
1.54m (ft) x 0.73m (ft)
Bedroom
3.22m (ft) x 3.57m (ft)
Bathroom
1.38m (ft) x 0.73m (ft)
Bath, basin, toilet.
Kitchen/Living Room
4.91m (ft) x 3.22m (ft)

Gross Internal Area
36.45m2 (392ft2)

Terms
Offers are invited in excess of £400,000 for the freehold premises with vacant possession of 105 and 105b. 105a is subject to a lease for a term of 999 years from 2nd December 2013 at a ground rent of £300pa.

EPC
105 -C60
105a -Unknown
105b-D64

Business Rates & Council Tax
The property falls within the London Borough of Enfield.

105-Rateable Value: £7,700.
105b-Council Tax Band B. Period 2023/2024, council tax payable would be £1,518.56.

All applicants should confirm with Enfield council the current rates payable.

MAP

Thinking of selling or letting, or looking for a new home?

FIND YOUR PROPERTY

About Us

WDB have been independent property consultants since 1962. We act for over one hundred clients and manage over a thousand properties varying from owners of single properties to multi million pound portfolios.

Read More >

Get in touch

mail@wdbproperty.co.uk
020 8886 4407
22 Cannon Hill, Southgate
London N14 6BY

Business hours

Monday – Friday: 9:30am – 5:30pm
Saturday: Mornings by appointment only
Sunday: Closed